Réf : GRL2

Duplex d’exception de 142 m² – Avenue Gabriel, Paris 8

Paris (75008)
1 920 000 €

A propos de ce bien

Le Cabinet Maurice Burger vous présente un magnifique duplex de 142 m², situé au 2ème et 3ème étage d’un immeuble de grand standing datant du XIXème siècle, au cœur de la prestigieuse Avenue Gabriel.

Une adresse rare, sectorisée Octave Gréard, à deux pas des Champs-Élysées et du Palais de l’Élysée.

Agencement de l’appartement

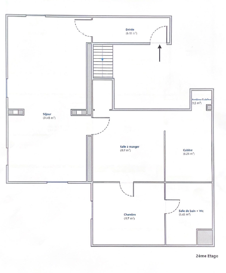
Premier niveau :

  • Entrée élégante avec couloir desservant les pièces de réception

  • Vaste séjour de 31,45 m², triple exposition, cheminée fonctionnelle

  • Cuisine séparée, entièrement équipée

  • Salle à manger conviviale

  • Suite parentale avec salle de bains et WC privatifs

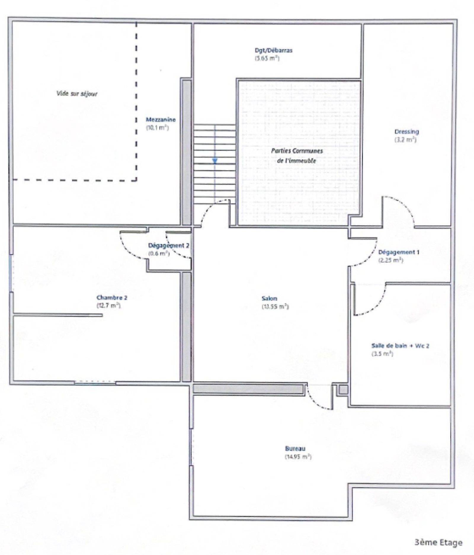
Deuxième niveau :

  • Chambre lumineuse et paisible

  • Bureau ou espace lecture

  • Deuxième salon confortable

  • Salle de bains avec WC

  • Dressing spacieux

  • Mezzanine polyvalente (coin lecture, bureau ou salle de jeux)

  • Débarras pratique

Les atouts du bien :
Adresse prestigieuse : une des plus recherchées de Paris
Calme absolu : appartement entièrement tourné sur cour
Luminosité exceptionnelle : grandes ouvertures et triple exposition

Un bien rare et raffiné, alliant charme de l’ancien, volumes généreux et potentiel d’aménagement, dans l’une des adresses les plus emblématiques de la capitale.

Descriptif du bien

TRAD_PAMPERO_Caracteristique Valeurs
Code postal 75008
Surface habitable (m²) 144 m²
Surface loi Carrez (m²) 142 m²
Nombre de chambre(s) 3
Nombre de pièces 6
Etage 2
Nombre de niveaux 2
Ascenseur NON
TRAD_PAMPERO_Caracteristique Valeurs
Nb de salle de bains 2
Cuisine Américaine
Type de cuisine Equipée
Mode de chauffage Gaz
Type de chauffage Radiateur
Format de chauffage Individuel
Interphone OUI
Balcon NON
Terrasse NON
Cave NON
Exposition Sud-Est
Année de construction 1850
TRAD_PAMPERO_Caracteristique Valeurs
Copropriété OUI
Lot n° 22
Quote Part annuelle des charges 4 175,44 €
plan de sauvegarde NON
TRAD_PAMPERO_Caracteristique Valeurs
Prix de vente honoraires TTC inclus 1 920 000 €
Charges 366 €
DPE GES
Ce bien vous intéresse ?
Fieldset par défaut
Fieldset par défaut
Validation

* Champs obligatoires

Contacter l'agence
Validation
Les informations recueillies sur ce formulaire sont enregistrées dans un fichier informatisé par La Boite Immo agissant comme Sous-traitant du traitement pour la gestion de la clientèle/prospects de l'Agence / du Réseau qui reste Responsable du Traitement de vos Données personnelles.
La base légale du traitement repose sur l’intérêt légitime de l'Agence / du Réseau.
Elles sont conservées jusqu'à demande de suppression et sont destinées à l'Agence / au Réseau.
Conformément à la loi « informatique et libertés », vous pouvez exercer votre droit d'accès aux données vous concernant et les faire rectifier en contactant l'Agence / le Réseau.
Si vous estimez, après avoir contacté l'Agence / le Réseau, que vos droits « Informatique et Libertés » ne sont pas respectés, vous pouvez adresser une réclamation à la CNIL.
Nous vous informons de l’existence de la liste d'opposition au démarchage téléphonique « Bloctel », sur laquelle vous pouvez vous inscrire ici : https://www.bloctel.gouv.fr 
Dans le cadre de la protection des Données personnelles, nous vous invitons à ne pas inscrire de Données sensibles dans le champ de saisie libre
Ce site est protégé par reCAPTCHA, les Politiques de Confidentialité et les Conditions d'Utilisation de Google s'appliquent.