Réf : Bureaux_Sébastopol

Bureaux à louer Boulevard Sébastopol PARIS 1ER

Paris (75001)
50 000 € / an HT - HC*

A propos de ce bien

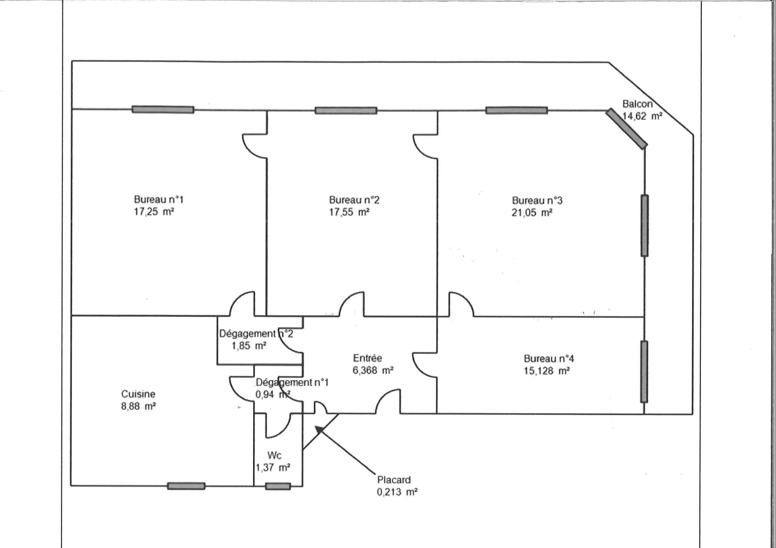
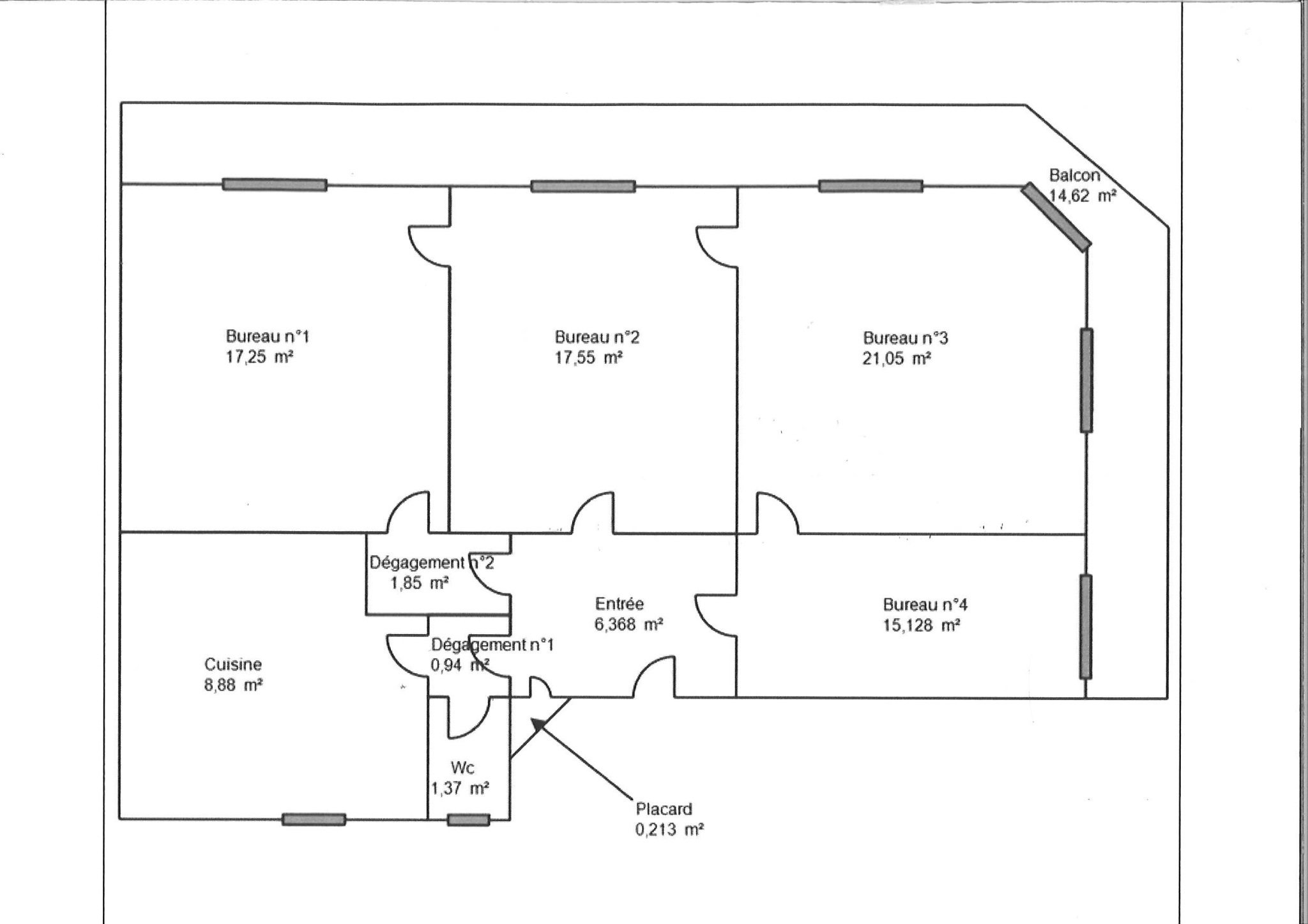
À LOUER - Bureaux Boulevard Sébastopol de 90,60 m²

Situé au 5ème étage d’un bel immeuble avec ascenseur, nous vous proposons ce plateau REFAIT A NEUF.

Il se compose de :

- Une entrée

- 4 Bureaux indépendants

- Une cuisine

- 1 wc

Chauffage et eau chaude Individuels électrique

Disponibilité : immédiate

Loyer annuel HT charges comprises : 52 000 €

Pour organiser une visite, veuillez remplir le formulaire de contact via l’annonce. Vous recevrez ensuite un e-mail de CASAP vous permettant de prendre rendez-vous en ligne.

Informations sur les risques auxquels ce bien est exposé disponibles sur www.georisques.gouv.fr

Descriptif du bien

TRAD_PAMPERO_Caracteristique Valeurs
Type de transac Bureaux
Code postal 75001
Surface habitable (m²) 90,60 m²
Ascenseur 1
Superficie (m²) 90.6
TRAD_PAMPERO_Caracteristique Valeurs
Mode de chauffage Electrique
Type de chauffage Autre
Format de chauffage Individuel
TRAD_PAMPERO_Caracteristique Valeurs
Copropriété OUI
TRAD_PAMPERO_Caracteristique Valeurs
Loyer HT 50 000 € / an
Honoraires HT charge locataire 15 000 €
Dont état des lieux Non renseigné
Dépot de garantie 12 500 €
Charges locatives HT (provision donnant lieu à régularisation annuelle) 2 000 €
DPE GES
Ce bien vous intéresse ?
Fieldset par défaut
Fieldset par défaut
Validation

* Champs obligatoires

Contacter l'agence
Validation
Les informations recueillies sur ce formulaire sont enregistrées dans un fichier informatisé par La Boite Immo agissant comme Sous-traitant du traitement pour la gestion de la clientèle/prospects de l'Agence / du Réseau qui reste Responsable du Traitement de vos Données personnelles. La base légale du traitement repose sur l'intérêt légitime de l'Agence / du Réseau. Elles sont conservées jusqu'à demande de suppression et sont destinées à l'Agence / au Réseau. Conformément à la loi « informatique et libertés », vous disposez des droits d’accès, de rectification, d’effacement, d’opposition, de limitation et de portabilité de vos données. Vous pouvez retirer votre consentement à tout moment en contactant directement l’Agence / Le Réseau. Consultez le site https://cnil.fr/fr pour plus d’informations sur vos droits. Si vous estimez, après avoir contacté l'Agence / le Réseau, que vos droits « Informatique et Libertés » ne sont pas respectés, vous pouvez adresser une réclamation à la CNIL. Nous vous informons de l’existence de la liste d'opposition au démarchage téléphonique « Bloctel », sur laquelle vous pouvez vous inscrire ici : https://www.bloctel.gouv.fr Dans le cadre de la protection des Données personnelles, nous vous invitons à ne pas inscrire de Données sensibles dans le champ de saisie libre.
Ce site est protégé par reCAPTCHA, les Politiques de Confidentialité et les Conditions d'Utilisation de Google s'appliquent.

* HC : Hors charges

Ces biens peuvent vous intéresser